Rekonstrukce staré chaty na dům pro čtyřčlennou rodinu, ve kterém se jim bude dobře žít.
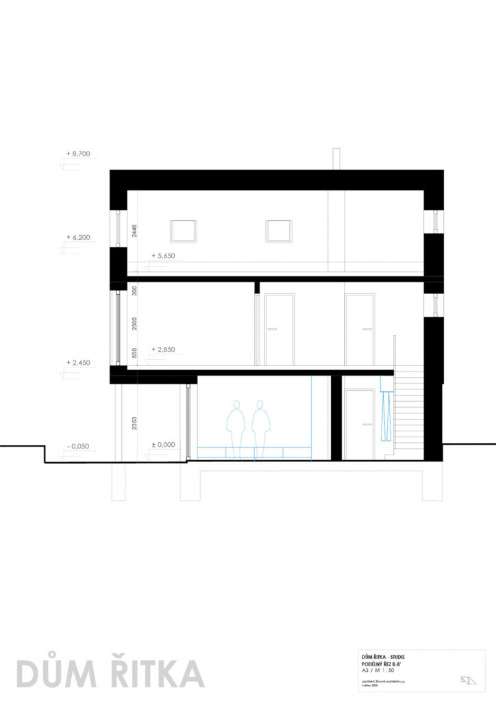
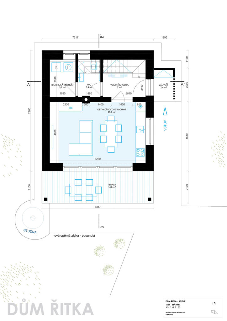
I přes malou půdorysnou plochu umí dům díky chytrému dispozičnímu řešení splnit požadavky majitelů a poskytuje dostatek prostoru. V přízemí se nachází hlavní obytný prostor s kuchyní a zázemím, který je možné rozšířit otevřením terasy a celkový užitný prostor se tak o dost zvětší. Toto řešení je sympatické obzvláště během teplých dnů, které tráví lidé venku. V patře se pak nachází tři pokoje s koupelnou – jedna hlavní ložnice a dva dětské pokoje, přičemž jeden z nich bude vybaven palandou. Velmi rádi navrhujeme prostory, které budou využitelné na maximum, proto jsme navrhli i obytnou půdu, která může sloužit jako relaxační místo a zároveň je zde stále dostatek prostoru pro uschování věcí.
Celý interiér bude pojednán v přírodních materiálech a je zde prostor i pro atypická řešení, například ve vstupní hale u schodiště, kde se kombinuje botník a věšák na oblečení se zábradlím a je využit každý centimetr.
Materiálově pracujeme se dřevem a falcovaným plechem, který celý objekt na bocích lemuje a reaguje tak i na dispoziční řešení.



















