V této architektonické studii se setkávají elegantní linie, promyšlené materiálové kombinace a funkční prvky, které dohromady tvoří harmonický celek.
Naším cílem bylo vytvořit interiéry, které nejen splňují vysoké nároky na pohodlí a estetiku, ale zároveň přinášejí nečekané momenty a originální detaily, jež povyšují každodenní bydlení na zážitek.
Byt I – ,,Béžový byt“
Jedná se o bytovou jednotku o výměře 47,4 m² s dispozicí 2 + kk, situovanou v 7. np bytového domu.
Dispoziční řešení je víceméně klasické – ústřední vstupní chodba s atypickou šatní skříní, na kterou přímo navazují ostatní místnosti. Koupelna naproti vstupu, po pravé straně ložnice s přístupem na malý balkón do vnitrobloku a na levé straně navazující obývací prostor s kuchyní. A právě v tuto chvíli se standardní koncepce malého bytu mění na naprosto nečekanou, s dechberoucím výhledem. Tento pohled je umocněn použitím střešního systému Nebesys, který posouvá střešní výhledy o několik úrovní výše a nabízí obyvatelům bytu jedinečný výhled na centrum Prahy.
Jedinečnost, byť malého, bytu umocní precizně vyrobený, esteticky a prakticky navržený interiér v přírodních tónech s kontrastní černou, který byl vybrán na základě moodboardu a koresponduje se záměrem klienta a jeho plánem byt pronajímat.
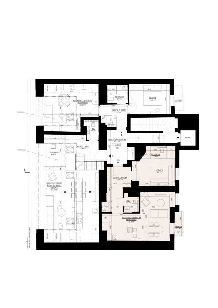
Byt II – ,,Byt bordó“
Jedná se o zcela nestandardní a nadstandardní mezonetovou bytovou jednotku o výměře 138,4 m² s velkorysou dispozicí 3 + kk a s prostornou terasou, situovanou v 7. np a 8. np bytového domu.
Dispoziční řešení je atypické – v 7. np se nachází hlavní vstupní hala s přístupem na wc, pracovnou a schodištěm do patra. Na vstupní halu navazuje hlavní obytný prostor s kuchyní, který má jedinečný charakter. Výhled, který tento prostor nabízí, je naprosto unikátní. Díky systému Nebesys je velká část střechy prosklená, otevřená do okolí.
Celkový dojem pak umocní precizně zpracovaný interiér s ústředním jídelním stolem a kuchyňským ostrůvkem, který pokračuje odpočinkovou zónou a rozlehlou sedací soupravou pod šikminou sedlové střechy. O patro výše se pak nachází dvě prostorné ložnice s vlastními koupelnami a úložným prostorem.
Malým zpestřením je pak i takzvaný ,,chill koutek“, který se nachází po levé straně vedle schodiště. Jedná se o útulný prostor s knihovnou, polstrovaným podiem a tlumeným osvětlením, který má výhled jak do vstupní haly, ale hlavně i na městskou zástavbu díky systému Nebesys. Pomyslnou třešničkou na dortu je pak, poměrně velkorysá, terasa do vnitrobloku, která nabízí jiný charakter výhledu a naprosté soukromí.
Nosným prvkem interiéru je barva bordó, která prostupuje celým interiérem. Je doplněna zlatými a černými akcenty, které, spolu se světlým dřevem.
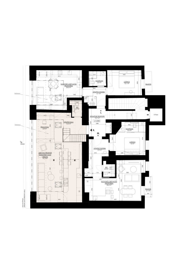
Byt III – ,,Zelený byt“
Tento byt je v současné chvíli součástí velkého bytu II a bude oddělen jako samostatná jednotka.
Nově se jedná se o bytovou jednotku o výměře 54,4 m² s dispozicí 2 + kk, situovanou v 7. np bytového domu. Dispoziční řešení je nově řešeno s ohledem na praktickou stránku – prostorná vstupní hala, s přímou návazností na hlavní obytný prostor, s dostatkem úložných prostor a se samostatným wc. Vstup do ložnice s vlastní koupelnou je po levé straně (v místě bývalé kuchyně), obývací pokoj s kuchyní je pak v zadní části bytu. Ten disponuje kuchyňskou linkou, jídelním stolem a odpočinkovou částí s televizí, knihovnou a sofa, z pokoje je i vstup na balkón. Okna bytu jsou orientována do vnitrobloku, díky čemuž je zaručen klid během denních i nočních hodin.
Interiér tohoto bytu je navržen v přírodních tónech s akcentem zelené a koresponduje se záměrem klienta a jeho plánem byt pronajímat.



















