Zadáním projektu bylo navrhnout dva bytové domy, které mají úžasné parcely v srdci pražské části Braník, u Branického náměstí.
Terén je mírně svažitý a domy svou hmotou a členitostí reagují na dané podmínky a doplňují uliční frontu podél Branické ulice, která je momentálně urbanisticky nedokončena.
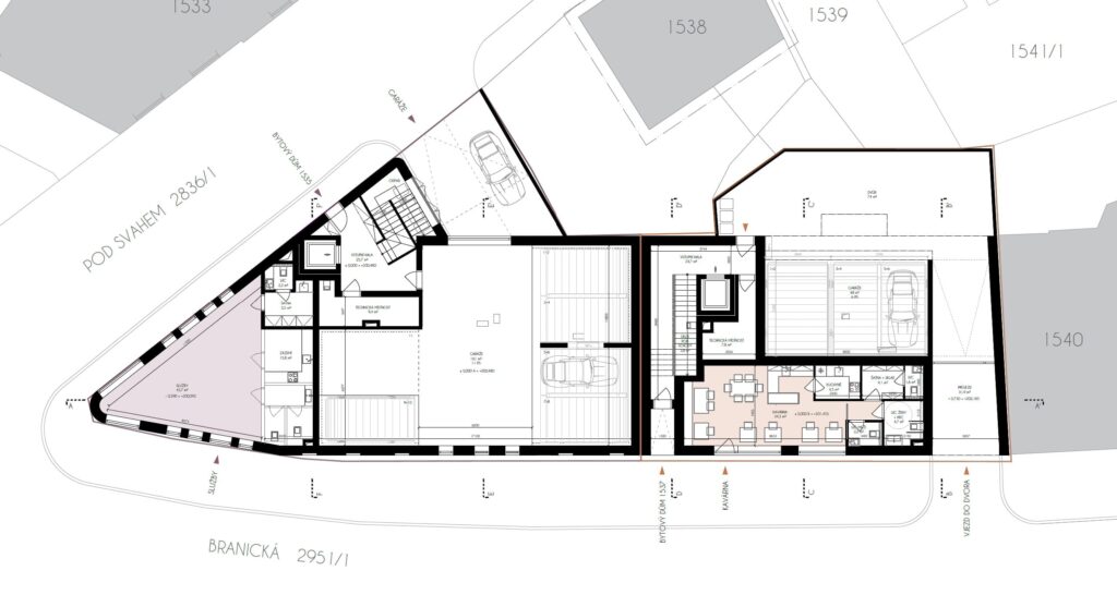
Díky lukrativní poloze a možnostem funkčního využití dané územním plánem jsou oba bytové domy v parteru doplněny službami, které nabídnou obyvatelům lokality vybavenost a vnesou k Branickému náměstí život, který mu patří. Je zde široká škála možností, jaké služby se dají do tohoto místa vnést, příjemná kavárna, potraviny, květinářství nebo například kadeřnictví. Toto funkční provázání bydlení a služeb je v Braníku již zavedené a výborně funguje v městském charakteru zástavby.
Charakter zástavby v Braníku odpovídá době, ve které vznikal, jedná se tedy o směs nízkopodlažních bytových domů z počátku 20. století a panelových domů ze 70. let 20. století. Zástavba tvoří převážně ucelenou blokovou strukturu, na kterou navazují solitérní vilové domy, stoupající svahem směrem k východu. Parcely, na nichž jsou objekty situovány, se nachází v přímé návaznosti na Branické náměstí a jsou v ostrohu mezi ulicemi Branická a Pod Svahem. Urbanisticky hmoty domů navazují na ustupující čtyřpodlažní bytové domy se sedlovou střechou s vikýři, podél ulice Branické, Je zde kladen důraz na dokončení neúplné blokové zástavby, která utváří městský charakter a propojení uliční fronty s navazující zástavbou v Branické ulici.
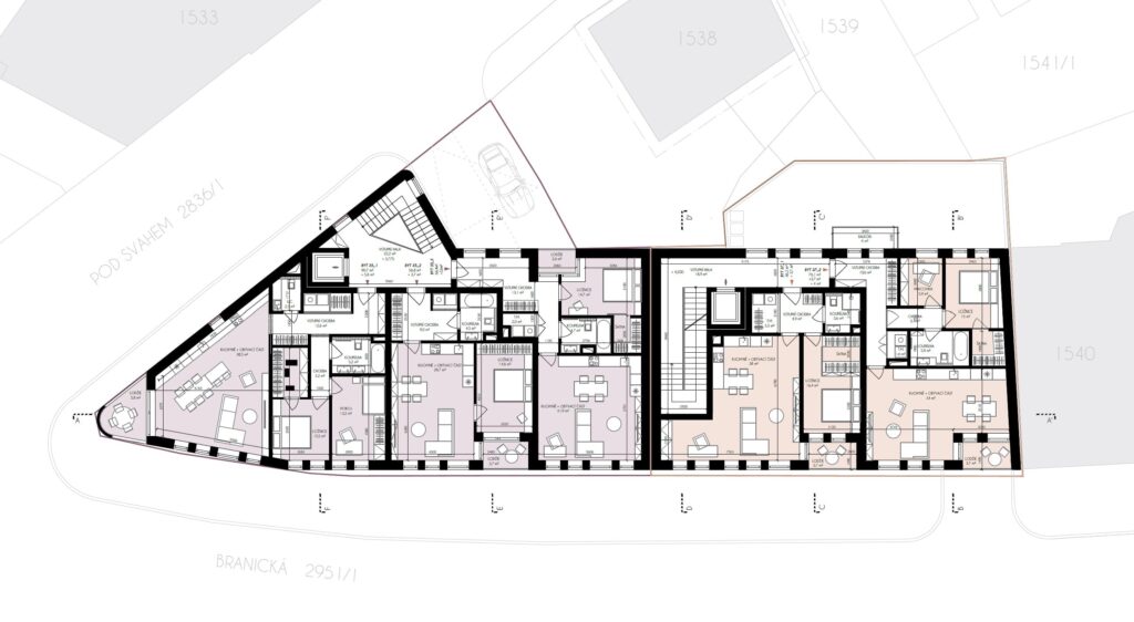
Navrhované domy mají čtyři podlaží, sedlovou střechu s vikýři a jsou doplněny o lodžie a terasy. V parteru jsou umístěné služby a parkování se zázemím domů, v dalších nadzemních podlažích pak byty o dispozicích 2 kk až 3 kk. a jsou doplněny lodžiemi ve 2. a 3 podlaží. Z materiálového hlediska budou domy pojednány kombinací dekorativních omítek a zvýrazněného parteru, která je v této městské části typická. Střešní krytina bude falcovaná, barevně sladěná s tóny domů. Rastr okenních otvorů reaguje na charakter stávající zástavby a vhodně kombinuje francouzská okna s okny s parapetem, která zajistí světelnou pohodu v jednotlivých místnostech bytů. Okna jsou doplněna exteriérovými žaluziemi, které zajišťují komfort vnitřního prostředí i během slunečných dnů.



















