Zadáním byla revitalizace parku Bílý kůň a návrh objektu zázemí pro návštěvníky parku a podzemních prostor, který se nachází na území městské části Praha 14.
Dle územního plánu SÚ hl. m. Prahy je plocha umístěna ve funkční ploše ZP – parky, historické zahrady a hřbitovy, tj. parky a ostatní záměrně založené architektonicky ztvárněné plochy městské zeleně sloužící k rekreaci.
Historicky se v oblasti hloubětínských Hutí těžilo již ve 2. polovině 18. století. Nejprve se jednalo o těžbu uhlí a později pískovce. Chodby lomů obvykle kopírovaly tektonické linie, podél kterých se vsakovala voda. Výsledkem je nepravidelný tvar, který připomíná jeskyně. Tak tomu bylo i v případě Fejkovy pískovny, která se skrývá pod parkem Bílý kůň. Po druhé světové válce byla zahloubená povrchová část pískovny zasypána struskou. Podzemí zůstalo částečně zachováno a po válce sloužilo jako sklad ovoce a zeleniny. Od 2. poloviny 80. let bylo podzemí postupně devastováno nezákonným skládkováním komunálního odpadu. V roce 2000 byly veškeré otvory zabetonovány.
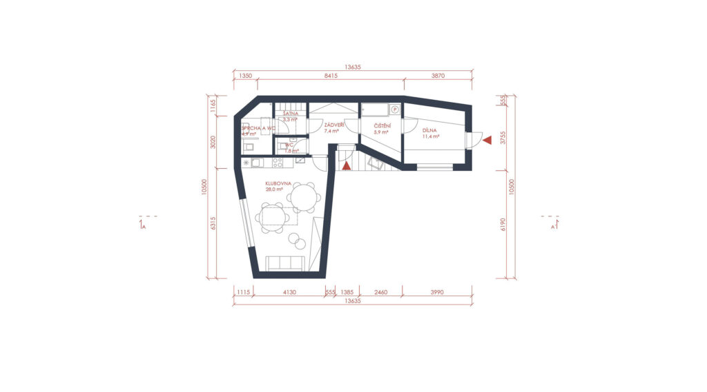
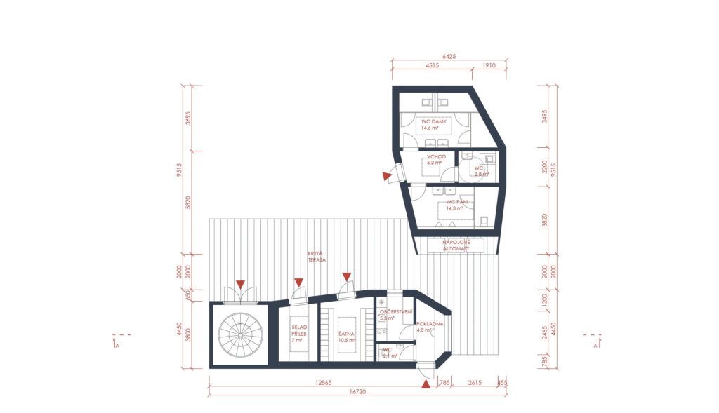
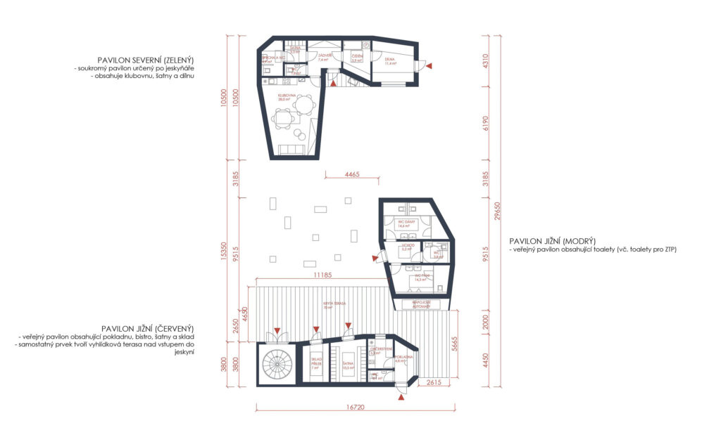
Obdélníkový pozemek, který je vymezen ulicemi Nad Hutěmi a Za Černým mostem je v současné době postupně vyklízen a čištěn. Většinu stromů tvoří náletová zeleň, která by měla být částečně zachována a vhodně doplněna. Perimetr parku by měl být v některých částech oplocen, aby byly jasně vymezeny jeho hranice. Při jižní hranici pozemku je navrženo kolmé parkování pro až 15 automobilů a obratiště, jelikož přilehlé ulice jsou obytné zóny a neumožňují parkování potenciálním návštěvníkům jeskyní ani otáčení vozidel. Je uvažováno se třemi přístupy do parku. Hlavní vstup je umístěn na nároží ulic Nad Hutěmi a Za černým mostem, sekundární vstupy jsou umístěny ve středu jižní a při východní hranici pozemku. Hlavní shromažďovací a setkávací prostor je navržen mezi pavilony. Každému z pavilonů byla přiřazena barva pro snazší identifikaci a orientaci. Pravý pavilon, který obsahuje veřejné toalety bude doplněn o modré prvky. Levý pavilon, který sestává z pokladny, bistra, šatny, skladu a vstupu do jeskyní s vyhlídkovou terasou, je navržen s červenými prvky. Samostatným výrazným prvkem je vyhlídková terasa nad vstupem do jeskyní, která je řešena jako kovová konstrukce s červenými lamelami, aby byl vstup zdůrazněn. Plachtové zastřešení mezi objekty tvoří krytou venkovní terasu, kde jsou umístěny nápojové prodejní automaty. Uvažuje se s uzavíratelností celého prostoru a zamezení tak možnému vandalismu v době, kdy nebude otevřen pro veřejnost, např. v zimních měsících. U severní hranice pozemku je umístěn zelený pavilon, který obsahuje klubovnu jeskyňářů a technické zázemí s dílnou. Páteřní cestu parkem Bílý kůň tvoří symbol nekonečna v jehož průsečíku se nachází hlavní setkávací prostor mezi jižními a severními pavilony. Park je zároveň rozdělen na zóny podle aktivit. V severovýchodním sektoru, kde jsou i v současnosti vzrostlejší stromy a výraznější morfologie, je navržena klidová zóna s atmosférou hlubokého tajemného lesa s kopečky, kapradím a vůní borovic. Jižní cesta oproti tomu bude otevřenější s nižším porostem. Střed parku bude naplněn aktivitami. V severozápadním cípu parku je zamýšlena další odpočinková zóna, která se bude svými výhledy otevírat za hranice parku na přilehlé polnosti.
Pavilony jsou navrženy jako lehké dřevěné montované konstrukce bez nutnosti hloubkového zakládání s dřevěným opláštěním. Jejich nepravidelný tvar vychází z jeskyní samotných, jako jejich inverzní odlitek na povrchu. Z hlediska bezpečnosti je eliminováno množství oken na fasádách a uvažuje se především o horním (chrámovém) osvětlení, které je rovněž odkazem k jeskyním.



















