Rekonstrukce rekreačního objektu na rodinný dům.
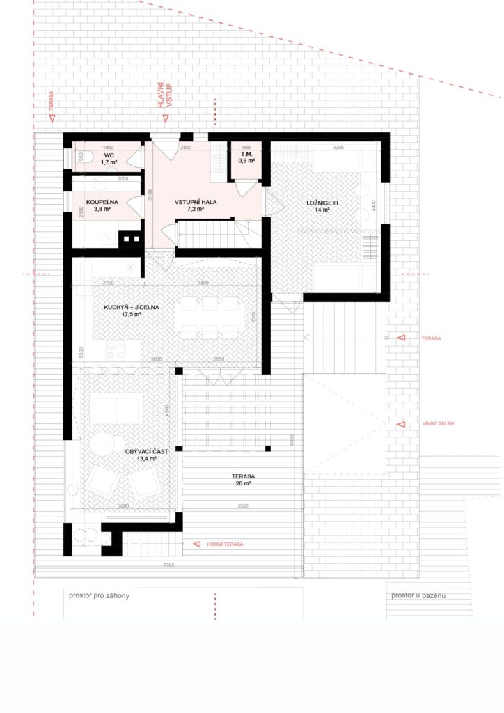
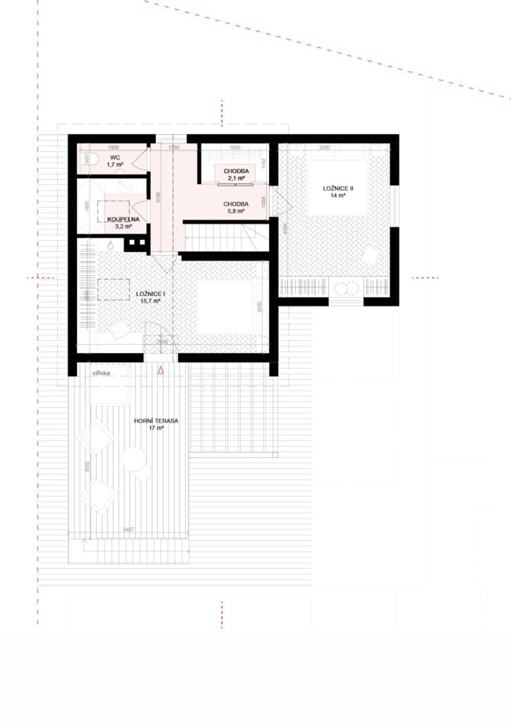
Projekt se zabýval rekonstrukcí rekreačně-obytného objektu pro rodinu s dětmi a přítele a jeho změnu na rodinný dům. Důraz byl kladen na funkční dispoziční uspořádání, které by vyhovovalo rodině za všech situací, logické návaznosti, snadnou údržbu a komfortní rekreaci v přírodě s možností pozdějšího trvalého bydlení.
Základním určujícím prvkem je stávající objekt chaty a svažitost pozemku s návazností na okolí a prostor u bazénu. Nově navrhované dispoziční uspořádání vychází ze současného stavu, jeho možností a zachování krásného výhledu na zahradu.
Návrh ponechává základní hmotu chaty a rozšiřuje ji dle potřeby přiznanou hmotou s plochou střechou. Nová část s obývacím pokojem navíc nabízí využití plochy střechy jako terasu, která bude přístupná ze zahrady i z ložnice v patře. Ve druhé, vyšší části, je situován dětský a hostovský pokoj. Prostor kolem hlavní obytné terasy u obývací části je esteticky a barevně odlišen, aby opticky ohraničil pobytový prostor. Navrhovaná rozšířená terasa koresponduje se stávající nivelitou a pokračuje v původním směru. Prostor kolem bazénu je materiálově a geometricky sjednocen s celým návrhem. Materiálově je hmota chaty pojednána celkově jednodušeji s barevným důrazem u obytné části kolem terasy.
Během přípravy projektové dokumentace a jejího projednávání došlo k dílčím úpravám oproti studii, které byly nezbytné, ale vedly k úspěšnému cíli.
Schvalovací proces a získání stavebního povolení provázelo pár zádrhelů, které vznikly ze strany majitelky sousedního objektu, proto byla lhůta pro vydání povolení mírně delší. Díky dvojímu potvrzení správnosti ze strany Krajského úřadu jsme ale nakonec projekt zdárně dokončili a konečně je možný posun k realizaci.



















