Předmětem projektu je novostavba bytového domu ve Fastrově ulici v Praze na Břevnově.
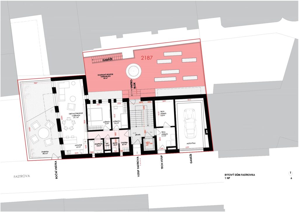
Plánovaný objekt je vsazován do stabilizované zástavby převážně tří a vícepodlažních bytových domů, tvořících ucelenou blokovou strukturu. Parcela, na níž je navrhovaný objekt situován, je prolukou jednoho z bloků. Navrhovaný objekt svou hmotou vytváří nároží tohoto bloku a stávající zástavbu tak logicky doplňuje a uzavírá. Z kompozičního hlediska tak vytváří klidovou zónu vnitrobloku, odstíněnou okolními objekty od ruchu velkoměsta. Vnitroblok je situován na sever od navrhovaného objektu, jižní fasáda domu se naopak otevírá do úzké a klidné Fastrovy ulice, obytné prostory mají tedy velmi dobré předpoklady pro pohodlné užívání.
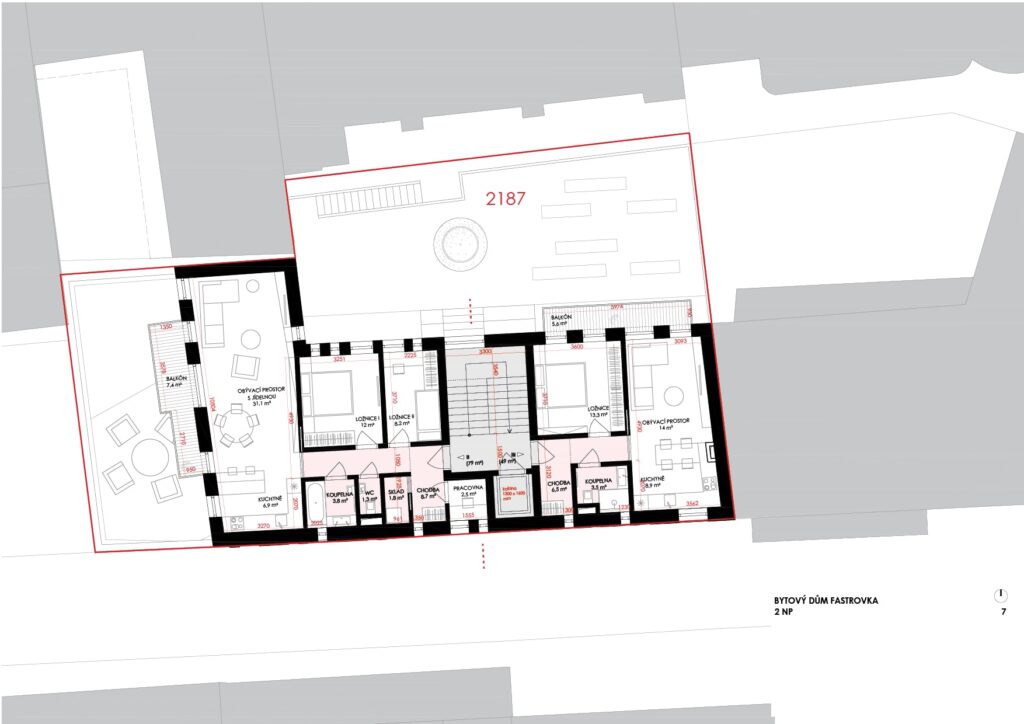
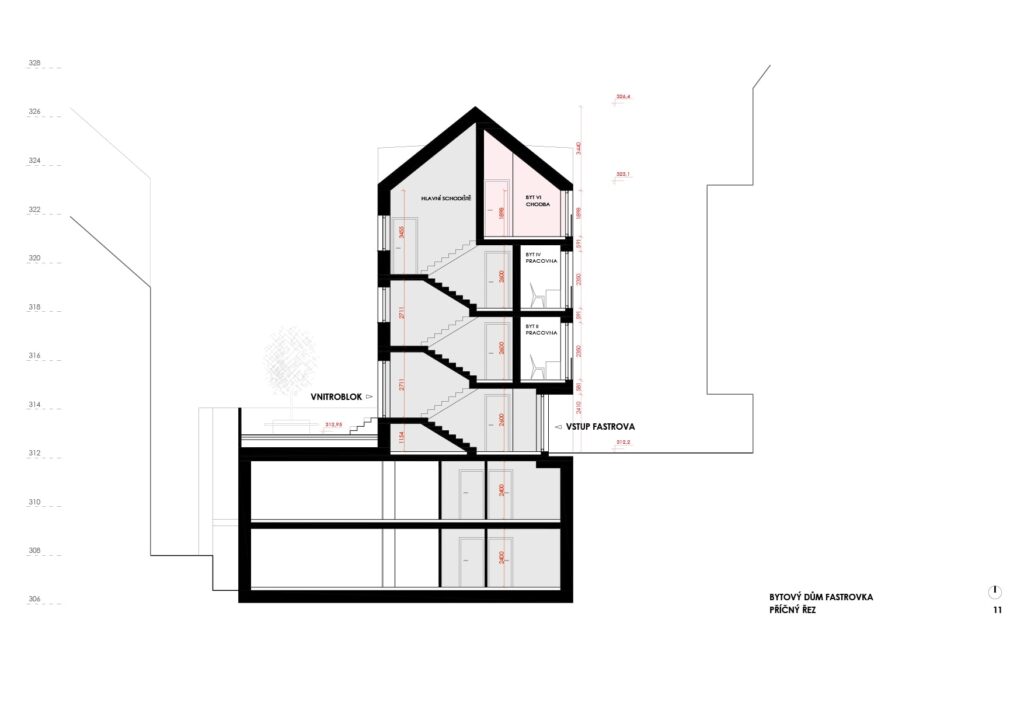
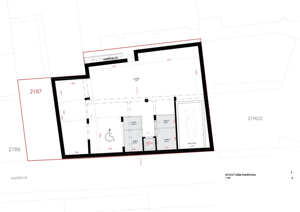
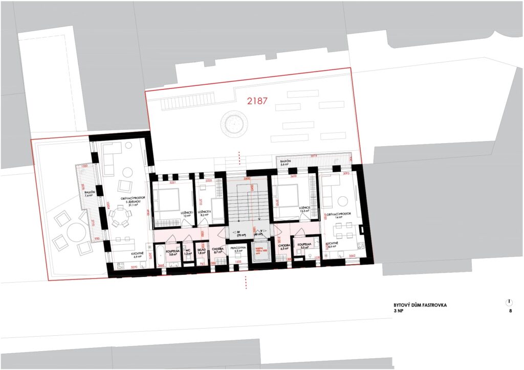
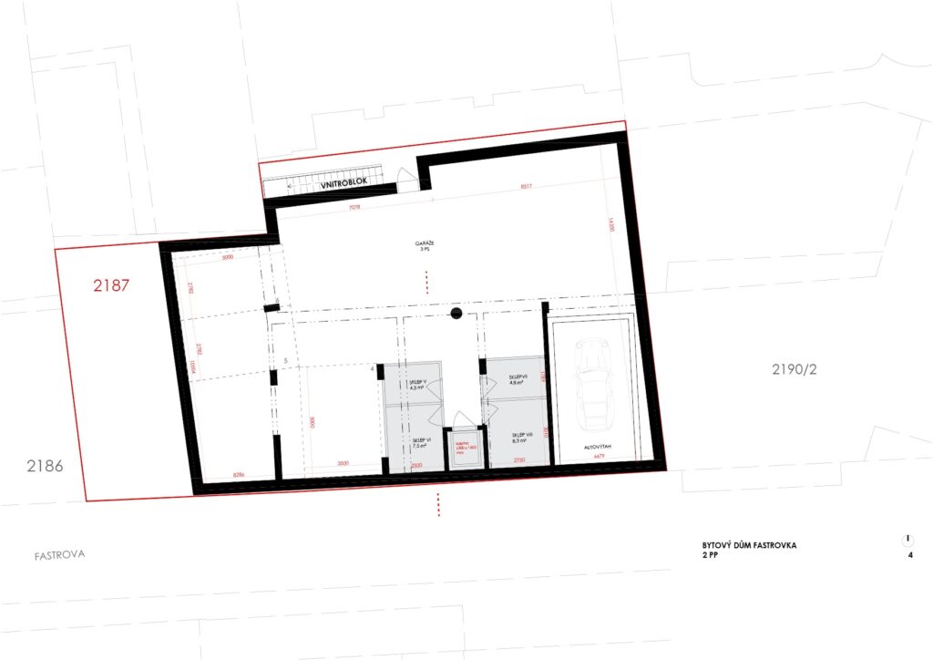
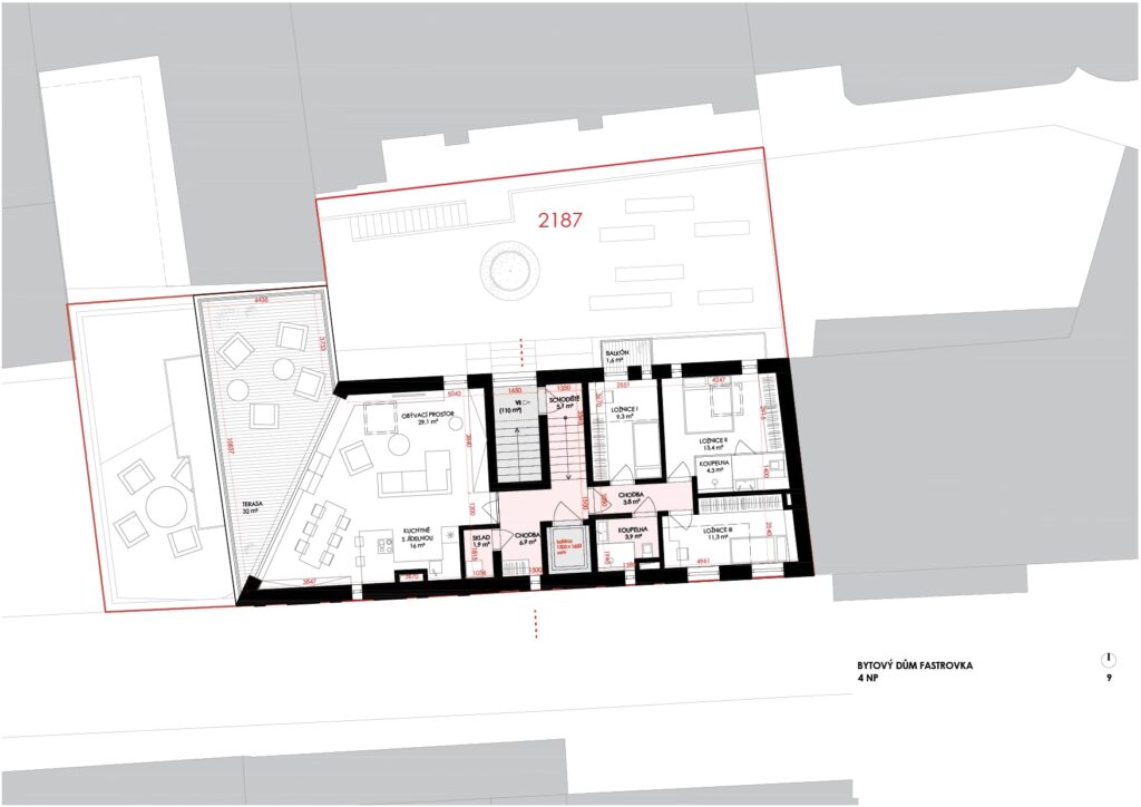
Z hmotového hlediska je dům monoblokem, členěným pouze v rovině střešní krajiny. Zatímco v uliční části je dům vertikálně uzavřena sedlovou střechou, západní část domu, uzavírající vnitroblok, je ukončena pochozí terasou, která je příslušenstvím bytu v posledním, tedy čtvrtém nadzemním podlaží. Vertikálně je bytový dům členěn na dvě podzemní a čtyři nadzemní podlaží, z nichž obě podzemní jsou vyplněna skladovými a parkovacími plochami a obsluhovanými výtahem pro motorová vozidla.
Z architektonického hlediska dům přizpůsobuje ztvárnění svých fasád potřebám vnitřní dispozice a okolnímu prostředí. Zatímco uliční fasáda svými nepravidelnými okny rozehrává rafinovanou hru s tvarovou i barevnou různorodostí okolních fasád, severní fasáda navrhovaného domu je o poznání pravidelnější, přispívá tak klidnému charakteru vnitrobloku. Charakteristickým rysem domu se mimo velkorysého prosklení západní stěny bytu v posledním nadzemní podlaží stává také překvapivý průhled vstupní chodbou na strom, který je dominantou vnitroblokové terasy. Dalším výrazným prvkem je použití probarveného betonu na hlavním schodišti a ve vnitrobloku, který tak odděluje jednotlivé charaktery bytového domu Fastrovka.



















